РУМЯНА ЕООД
., ., София Град (София)
Румяна Любомирова Панчева
+359878975644
Email: rumyana2012@gmail.com
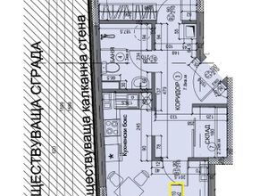
Продажба Двустаен апартамент
166.900€ | 326.428,03лв, 92 кв.м.
Код на имота:
17273835
Жилищен |
Апартамент |
Цена |
166.900€ | 326.428,03лв |
Площ (кв.м.) |
92 кв.м. |
Цена на кв.м. |
€ 1.814 |
Област |
Бъкстон (София Град) |
Спални |
1 |
Етаж |
8-ми |
Отоплителна Система |
Централно отопление |
Нива |
1 |
Кухни |
1 |
Дневни |
1 |
Бани |
1 |
Тоалетна |
1 |
Статус |
Недовършен |
- Допълнителна информация:
- Асансьор,
- Вътрешно стълбище,
- Дограма: PVC,
- Блиндирана врата,
- Охранителна система,
|
Описание:
Двустаен апартамент в строеж, находящ се в кв. Бъкстон /близо до Метро станция Красно село/ ет.8. Състоящ се от: Дневна с кухненски бокс, спалня,, склад, санитарен възел и един балкон. Разрешение за ползване декември 2025 година.
изложение Изток/Запад
Чиста Площ:72,44 м2
Обща площ: 92,71м